La propiedad indicada se encuentra Vendida

Casa / Terreno en Lote Propio Irregular a Reciclar - Parque Patricios - Capital Federal

Arriola 230 - Parque Patricios - Parque Patricios, Capital Federal, Capital Federal

  • Casas
  • 4 Dormitorios
  • 6 Ambientes
  • 2 baños
  • 245.00mt²
  • USD 139.000 En Venta

Descripción

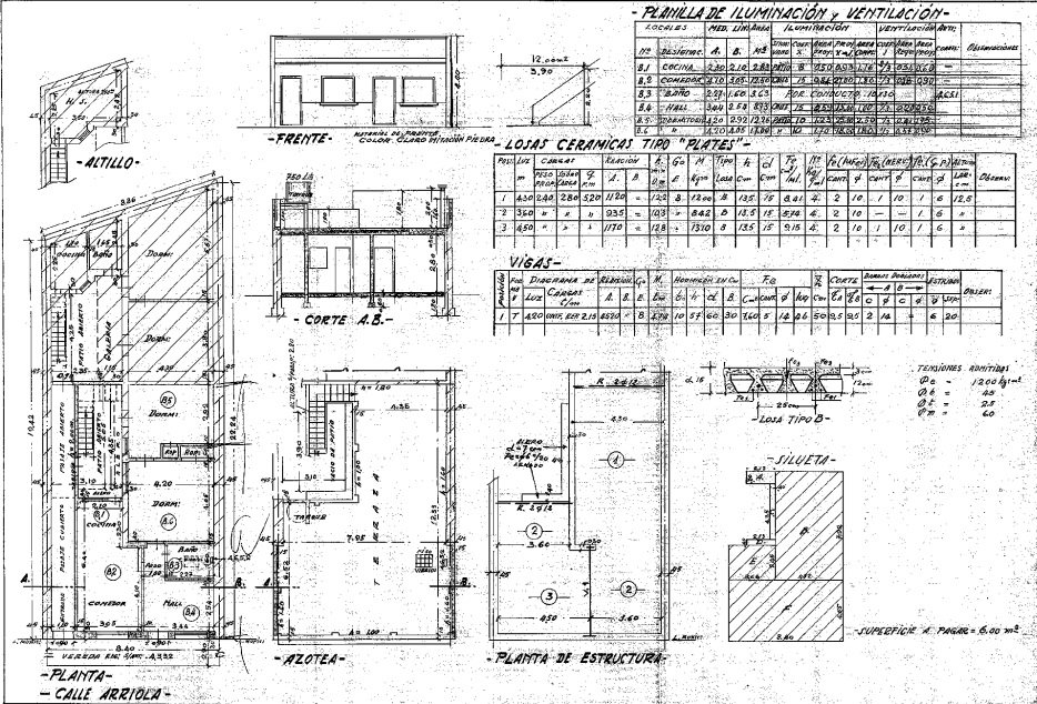
¡OPORTUNIDAD DE INVERSIÓN! Casa/Terreno en Lote propio en forma Irregular de 8.40x19,42/22,24. A reciclar con una casa equipada para Dos Familias. Planos al día, coincide con la totalidad de la casa a excepción del "Cuarto de Herramientas" que esta situado en la terraza de la vivienda del frente. ¡Excelente Ubicación! A Dos cuadras de Avenida Caseros, a Cuatro cuadras del "Hospital Churruca", a una Cuadra del "Parque de los Patricios" (Estación de Subte Línea H), HIt 8 (Google) y Restaurante/Bodegón en la esquina ubicado en la esquina de Arriola y Uspallata. DISTRITO TECNOLÓGICO. Cercanía a Bares Ubicados en las calles Corrales Viejos y Patagones, entre ellos Café Martínez, Cerveza Patagonia,/Jardín Cervecero; ubicada a pocas cuadras de Avenida Caseros y La Rioja centro comercial de Parque Patricios, nos encontramos con la Sede del Club "Huracán", confitería Havanna, Pizzeria "El Globito" y "Las Palmas", Starbucks Coffee, The Hood Hamburguesas entre otros. PRIMER VIVIENDA: - TERRAZA 8.40*6.60 / 5.30*4.30 (con cuarto herramientas incluido). - PATIO CON LAVADERO Y ESCALERA 5.30*2.2 CERÁMICA - COCINA 6.30*3 PISO DE GRANITO. - LIVING/COMEDOR 2.60*3.40 PISO DE GRANITO. - HALL DISTRIBUIDOR 1.60*1 PISO DE GRANITO - BAÑO COMPLETO 2.40*1.80 PISO DE GRANITO. - DORMITORIO 4*4.40 PISO DE PARQUET. - DORMITORIO 4*3.60 CON PLACARD PISO FLEXIPLAX. PASILLO COMÚN EN ENTRADA 1.10*12.20. SEGUNDA VIVIENDA: - PATIO CON LAVADERO 5.40X3.60 PISO DE CERÁMICA. - DORMITORIO 4.20*3.90 PISO DE PARQUET. - DORMITORIO 4.20*5.20 PISO DE CERÁMICA. - BAÑO COMPLETO 2.50*1.75 PISO DECERÁMICA. - COCINA 2.60*1.70 PISO DE GRANITO. - CUARTO HERRAMIENTAS 2*2 (Aprox.). Tiene Doble entrada: una para la primer vivienda; y otra por pasillo con acceso a la vivienda del fondo. Cuenta con todos los servicios al día. ****LA MISMA ES UN LOTE PROPIO SIN SUBDIVISIÓN A RECICLAR EN SU TOTALIDAD, EL VALOR PUBLICADO CORRESPONDE AL TERRENO**** TERRENO IRREGULAR: 8.40x19,42/22,24 (terminación en forma irregular) SUPERFICIE CUBIERTA CONSTRUIDA: 140 m² aprox. SUPERFICIE DESCUBIERTA: 105 m² aprox. (incluye Terraza) SUPERFICIE TOTAL: 245 m² aprox. - NO TRABAJAMOS CON AGENTES INMOBILIARIOS, FRANQUICIAS O CADENAS DE INMOBILIARIAS. ❌ - NO SE ACEPTAN PROPIEDADES EN PARTE DE PAGO. ❌ TRANSPORTES CERCANOS Colectivos: 9, 25, 28, 31, 32, 50, 65, 75, 91, 101, 118, 133, 134, 150, 188 Subtes (Metro): PARQUE PATRICIOS (Línea H) DATOS ÚTILES: Barrio: Parque Patricios Comuna: Comuna 4 Área Hospitalaria: HTAL. J.M. PENNA Comisaría Comunal: 4 Comisaría Vecinal: 4A Distrito Escolar: Distrito Escolar V Código Postal: 1437 Código Postal Argentino: C1437FAF Distrito Económico: DISTRITO TECNOLOGICO Aviso Legal: las descripciones arquitectónicas y funcionales, impuestos y servicios, fotos y medidas de este inmueble son aproximados. Los datos fueron proporcionados por el propietario y pueden no estar actualizados a la hora de la visualización de este aviso por lo cual pueden arrojar inexactitudes y discordancias con las que surgen de las facturas, títulos y planos legales del inmueble. El interesado deberá realizar las verificaciones respectivas previamente a la realización de cualquier operación, requiriendo por sí o sus profesionales las copias necesarias de la documentación que corresponda. Venta supeditada al cumplimiento por parte del propietario de los requisitos de la resolución general nº 2371 de la afip (pedido de coti). no apto para personas con movilidad reducida - ley 5115.

Código KP361638
Categoría Casas
Estado Vendida
Venta USD 139.000
Dirección Arriola 230
Zona Parque Patricios
Barrio Parque Patricios
Ciudad Capital Federal
Provincia Capital Federal

Contáctanos